Radius Housing Association has confirmed it intends to press ahead with a controversial social housing development close to Damolly Retail Park in Newry next month – almost a decade after the plans were first lodged and despite continued opposition from local residents.
Residents living near Hickey’s Lane, Drumgullion Avenue, Lisgullion Park and Lisdrum Avenue were informed on Friday, via a leaflet drop, that Radius plans to commence works by the end of March 2026, subject to final funding approval from the Northern Ireland Housing Executive (NIHE).
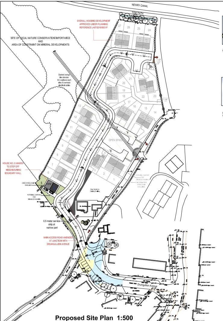
The scheme relates to lands to the north of 78 Armagh Road, close to Damolly Retail Park, and forms Phase 1 of a wider development that has been fiercely contested since it was first proposed in 2016.
According to the leaflet, Radius is in the process of acquiring the site and has planning permission – granted in October 2023 following an amendment to plans granted in 2020 – to build 21 social homes for rent in the first phase.
These include: 13 two-bedroom houses; Three three-bedroom houses; Two wheelchair-accessible three-bedroom houses; One wheelchair-accessible two-bedroom house; and Two one-bedroom apartments.
A second phase, involving a further six two-bedroom apartments, is planned for a later date and will require a separate planning application and community consultation.
The development has a long and contentious history. Original proposals were submitted to council in spring 2016 and later approved despite 865 objections and a public protest in 2020.
At the time, residents raised concerns about traffic congestion and road safety, environmental impact, drainage and sewerage capacity, and the character of the established neighbourhood.
Council officers ultimately recommended approval, concluding the development was acceptable in principle and complied with planning policy.
Local residents say little has changed in the intervening years – and argue the latest leaflet only reinforces their concerns.
Among the issues raised are: Sewerage infrastructure, which residents say is already under pressure; Access via Hickey’s Lane, which they describe as narrow, problematic and already affected by anti-social behaviour; Fears the development will open up Hickey’s Lane to Drumgullion Avenue and Lisgullion Park, worsening existing problems.
Residents have also criticised Radius for what they describe as a lack of meaningful community engagement, pointing out there was no consultation on Phase 1, despite the leaflet implying previous engagement had taken place.
They say this has left many feeling sidelined, with decisions effectively made without local consent.
For many locals, the announcement has confirmed long-held fears that the development would proceed regardless of community opposition.
“It’s nearly ten years on and people are still saying the same things,” one resident told Armagh I. “The concerns were never resolved – they were just overridden.”
Radius has said it welcomes feedback and has directed residents to its website and consultation email address consultation@radiushousing.org.
However, with work pencilled in to begin within weeks, many locals believe the opportunity to influence Phase 1 has already passed.
