House Type |
THE BELLAMONT (A) |
|---|---|
Style |
Detached House |
Status |
For sale |
Price |
£365,000 |
Bedrooms |
4 |
Bathrooms |
3 |
Receptions |
2 |
Heating |
Gas |

Click here to view full gallery
Property Units
Unit Name |
Price |
Size |
|---|---|---|
including garden room, Site 49, 6 Bellfield Park |
£365,000 |
1,543 sq. feet |
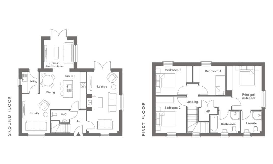
The Bellamont (A)
Four bedroom Detached Home
Site Nos. 3, 50 (H) Total Floor Area 1434 sq. ft. approx with optional garden room 1543 sq. ft. approx.
Ground Floor Ft/Inch (Metres)
Entrance Hall
WC
Lounge: 21’4” x 11’2” (6.48m x 3.40m)
Kitchen | Dining: 16’1” x 13’0” (4.90m x 3.95m)
Family: 13’7” x 6’2” (4.13m x 1.88m)
Utility
Optional Garden Room 10’4” x 10’0” 3.12 x 3.04
First Floor Ft/Inch (Metres)
Principal Bedroom: 14’0” x 11’2” (4.23m x 3.40m)
Ensuite
Bedroom 2: 11’7” x 9’8” (3.52m x 2.95m)
Bedroom 3: 11’7” x 9’3” (3.53m x 2.83m)
Bedroom 4: 10’3” x 9’3” (3.12 x 2.83m)
Bathroom
Specification
Kitchen and Utility
High quality Kitchen & Utility units with soft close doors & drawers Choice of Kitchen & Utility door styles, colours and door handles Range of quartz worktops with undermounted sink in Kitchen & laminate worktop in Utility with stainless steel sink unit
Choice of feature ceramic tiling between Kitchen units Porcelain floor tiling Integrated appliances in Kitchen to include 5 ring gas hob, extractor fan, electric oven, fridge freezer and dishwasher
Electrical and plumbing provision for washing machine and tumble dryer in the Utility LED under lighting to Kitchen units Recessed LED down lighting to ceiling in Kitchen and pendant light fitting in the Utility
Bathroom, Ensuite and WC
Contemporary white sanitary ware to include back to wall toilet throughout & low-profile shower trays with chrome fittings
Separate fully tiled shower enclosure with dual rain drencher shower head in Bathroom & En Suite
One drawer wall hung vanity unit in Bathroom or En Suite Chrome towel radiators in Bathroom & En Suite Choice of porcelain floor tiling and partial wall tiling in Bathroom, En Suite & WC Recessed LED down lighting to ceiling in Bathroom & En Suite Pendant light fitting in WC
Internal Features
Internal decor – walls painted from a palette of selected colours (1 colour throughout), ceiling painted as standard
Choice of stove with granite or slate hearth Mains supply of smoke & carbon monoxide detectors with battery backup Moulded skirting & architraves with painted finish Solid Mexicano internal doors with painted finish and quality contemporary ironmongery
Carpets to Lounge, stairs, landing & bedrooms with high quality underlay Porcelain tiling in Hallway Comprehensive range of electric sockets, switches, TV & telephone points prewired for BT Fibre optic
Wiring for future satellite point Energy efficient Gas fired central heating Integral security alarm system Energy efficient fittings/bulbs to all rooms
External Features
PV solar panels fitted as standard Timber frame construction Front gardens to be turfed Rear garden to be rotovated and seeded in next planting season (weather dependent)
Bitmac driveway Tobermore pavers to front of house & contemporary stylish paving to the rear uPVC Anthracite framed double glazed windows and uPVC rear doors Composite contemporary front door with secure multi locking system External socket Outside water tap External lighting to front and rear doors
Warranty
10 year structural warranty provided by Global Homes
Management Company
A Management Company will be set up by the Developer, and each homeowner will be a member. An annual maintenance fee will be payable to the Management Company to allow for maintenance and insurance of communal amenity areas.
View more about this property click here
To view other properties click here
Joyce Clarke
2 West Street,
Portadown, BT62 3PD
028 3833 1111